Matthews Logo

Navigation Menu

699 Spring St NW, Atlanta, GA, 30308

The Connector
FOR LEASE

Key Information

Tot. SF
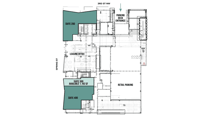
1,162
Type
Retail

1 Space Available

Space name
RETAIL SPACE AVAILABLE
Rental rate
FOR LEASE
Space available
1,162
Space Use
retail

Highlights

  • Retail Space Available for Lease
  • ±1,162 SF

Photos

Location

Agents

Broker of Record

Maxx Bauman

License # 451849 (GA)
Matthews Real Estate Investment Services, Inc
1600 West End, Ste. 1500 Nashville, TN 37203